Laois County Council Announces Acquisition of Avon Site in Portarlington for Industrial Development
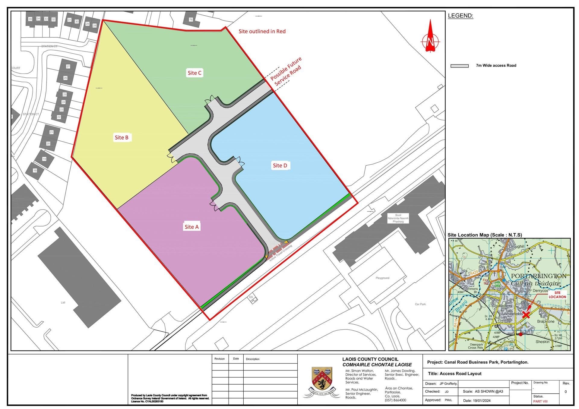
Laois County Council is pleased to announce the acquisition of 6 acres at the former Avon site at Canal Road, Portarlington. The Council has previously approved Part 8 proposals for the lands, facilitating the development of the Canal Road Business Park, providing four, fully serviced Industrial sites. In turn, this creates a significant opportunity for businesses and further boosts the local economy. Funding of €999,963 under the Just Transition Fund has been secured towards the redevelopment of the site which was previously the home of Avon Cosmetics, a large employer in the town for many years.
The strategic location of the Avon site, with its proximity to key transport routes and Portarlington’s thriving industrial base, makes it an ideal location for businesses seeking to expand or establish new operations in County Laois. Each of the four sites will be fully serviced and ready for development in March 2026, providing high-quality infrastructure for companies across a range of sectors.
According to Michael Rainey, Chief Executive of Laois County Council ‘The Council are excited to unlock the potential of this site for industrial development. This development represents a great opportunity for businesses to establish themselves in one of the most well-connected regions in the country. The investment in the site aligns with the Council’s commitment to support economic growth and job creation in Laois’.
The four industrial sites will offer flexibility for a wide range of business types, from manufacturing and warehousing to technology and logistics. The availability of ready-to-use serviced sites will help attract new enterprises to County Laois and encourage further investment in the region. The development will also play a crucial role in strengthening the local economy, supporting job creation, and enhancing the regional attractiveness to investors.
Angela McEvoy, Director of Economic Development said ‘We look forward to welcoming businesses to the sites and seeing the positive impact this development will have on Portarlington and the wider county. Laois County Council is dedicated to fostering a business-friendly environment and will continue to work closely with stakeholders to ensure the success of this initiative.’
Businesses interested in the opportunity to locate at the Avon site are encouraged to contact Laois County Council for more information. For further enquiries, please contact Evelyn Reddin, Head of Enterprise, 057 86 61800 ereddin@laoiscoco.ie
Click to view full official Press Release
